Tay co thuỷ lực âm Hafele DCL33 – Có chức năng giữ cửa
Đặc tính
> Kiểm định theo tiêu chuẩn EN 1154
> Có cơ cấu cam
> Đạt chứng nhận CE
> Lắp âm trên cánh cửa hoặc trên khung
> Có thể điều chỉnh lực đóng
> Có thể điều chỉnh tốc độ chốt
> Có thể điều chỉnh tốc độ đóng
> Phù hợp cho cửa mở trái và mở phải
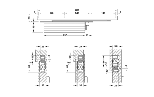
Thông tin kỹ thuật
> Lực đẩy EN2-EN4
> Chiều rộng cửa 750-1.100 mm
> Trọng lượng tối đa 80kg
> Góc mở tối đa 115 độ
> Góc giữ cửa 115 độ
> Độ dày cửa tối thiểu 46 mm









Đánh giá
Chưa có đánh giá nào.