CỬA TRƯỢT BẰNG MẶT FINETTA FLATFRONT S/US 20 FB HAFELE
• Phiên bản: cho 2 cánh
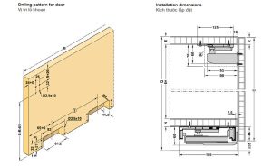
• Chiều rộng tủ: 2200 mm
• Chiều rộng tủ lọt lòng: 2162 mm
• Chiều rộng cửa: 1096 mm
• Chiều cao cửa: ≤1,200 mm
• Độ dày cửa: 18 – 30 mm (bao gồm tay nắm: 45 mm)
• Chiều sâu lắp đặt: Phụ kiện không gồm cửa: 185 mm
• Bánh xe trượt: trượt dưới
• Khả năng điều chỉnh: Chiều dọc ±4.5 mm, chiều ngang ±3 mm
• Phù hợp cho: 2 cánh đối xứng hoặc 1 cánh và hộc kéo
• Phiên bản: Có giảm chấn
• Khoảng cách từ tay nắm đến cạnh cửa ≥10 mm









Đánh giá
Chưa có đánh giá nào.